
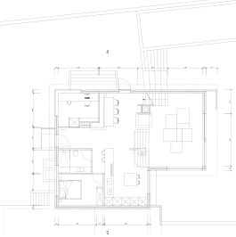
Die Doppelhaushälfte aus den 70er Jahren wird einer Kernsanierung unterzogen und soll den zeitgenössischen Lebensstandards der Generation Y entsprechen. Die charakteristische Architektur, mit seinen terrassierten Ebenen, wird durch eine Öffnung des Grundrisses hervorgehoben und ermöglicht einen flüssigen Ablauf mit vielen durchdachten Einbauten und Details.
Projektdaten
Projektphase: Entwurfsphase
Fertigstellung: 2022
Leistungen
Entwürfe
Grundriss- & Fassadenstudien
Kalkulationen
Team/Credits
Das Projekt wurde während meiner Zeit im Studio Gabriel Heusser erarbeitet.



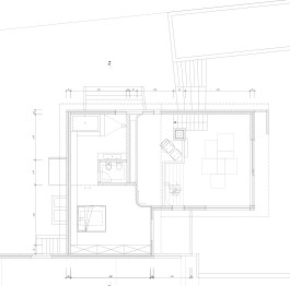
Die Doppelhaushälfte aus den 70er Jahren wird einer Kernsanierung unterzogen und soll den zeitgenössischen Lebensstandards der Generation Y entsprechen. Die charakteristische Architektur, mit seinen terrassierten Ebenen, wird durch eine Öffnung des Grundrisses hervorgehoben und ermöglicht einen flüssigen Ablauf mit vielen durchdachten Einbauten und Details.
Projektdaten
Projektphase: Entwurfsphase
Fertigstellung: 2022
Leistungen
Entwürfe
Grundriss- & Fassadenstudien
Kalkulationen
Team/Credits
Das Projekt wurde während meiner Zeit im Studio Gabriel Heusser erarbeitet.



Jetzt abonnieren, um weiterzulesen und auf das gesamte Archiv zuzugreifen.